Saint-Placide
2 650 000 €14 722 € / m2
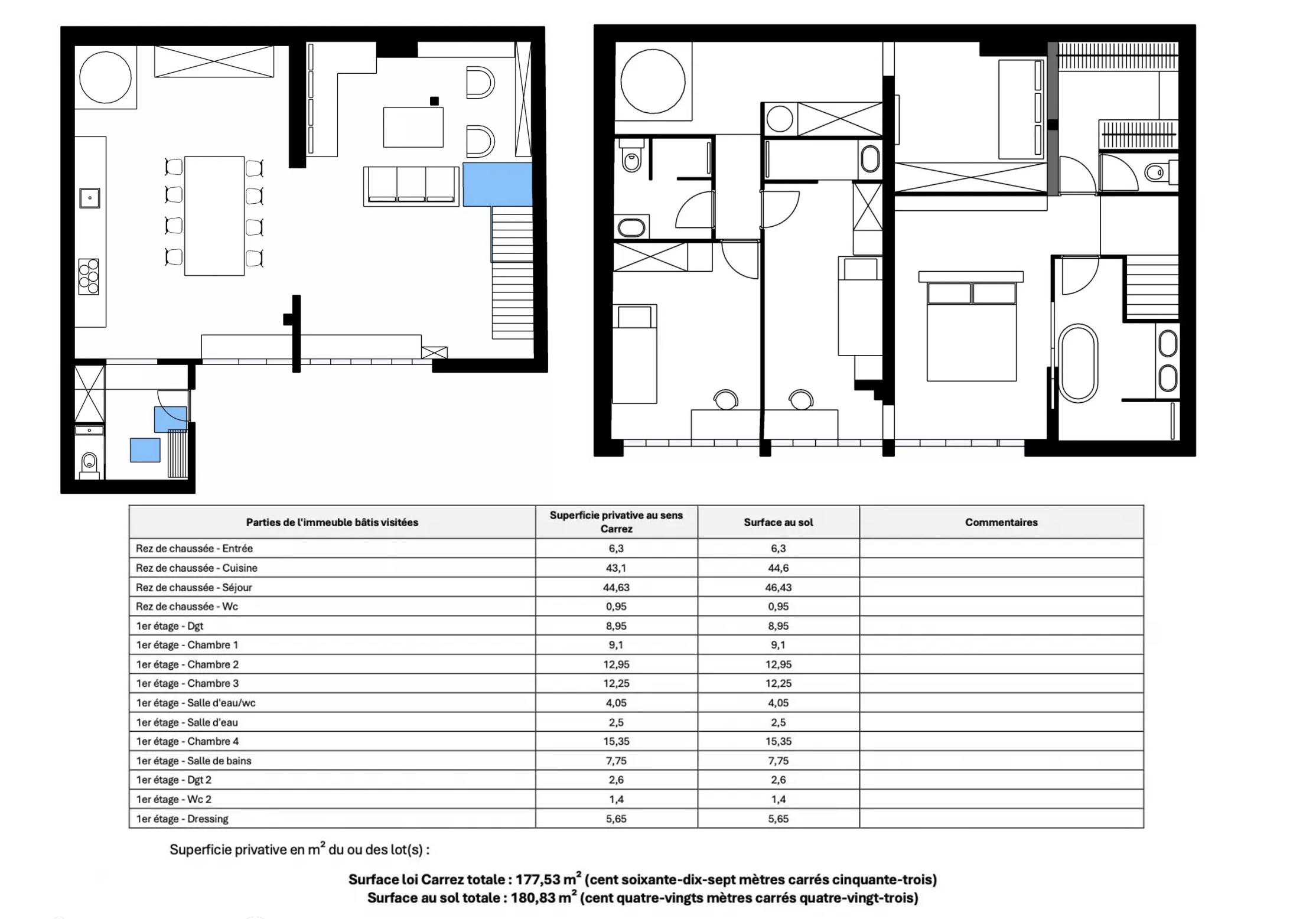
180 m²4 chambresHonoraires charge vendeurDPE: B (88 kWh/m².an) / GES: C (17kg CO2/m².an)Pas de procédure en coursplan
À proximité de Saint-Placide, des commerces de la rue du Cherche-Midi et des établissements scolaires réputés, au fond d'une cour arborée et à l'abri des regards, appartement familial "style maison" de 177,53 m² Loi Carrez, au calme absolu et entièrement refait par un architecte. Le rez-de-chaussée se compose d'une entrée avec rangements et toilettes invitées, d'un agréable espace de vie de 90 m² avec cuisine ouverte sur une vaste salle à manger et un séjour de 45 m² (3m de hauteur sous plafond). Au 1er niveau : suite parentale indépendante avec sa propre salle de bains, dressing et toilettes séparées, 3 chambres, 2 salles d'eau dont une avec toilettes, espace buanderie. Gardien.
Les informations sur les risques auxquels ce bien est exposé sont disponibles sur le site Géorisques : www.georisques.gouv.fr