Jourdain
920 000 €6 813 € / m2
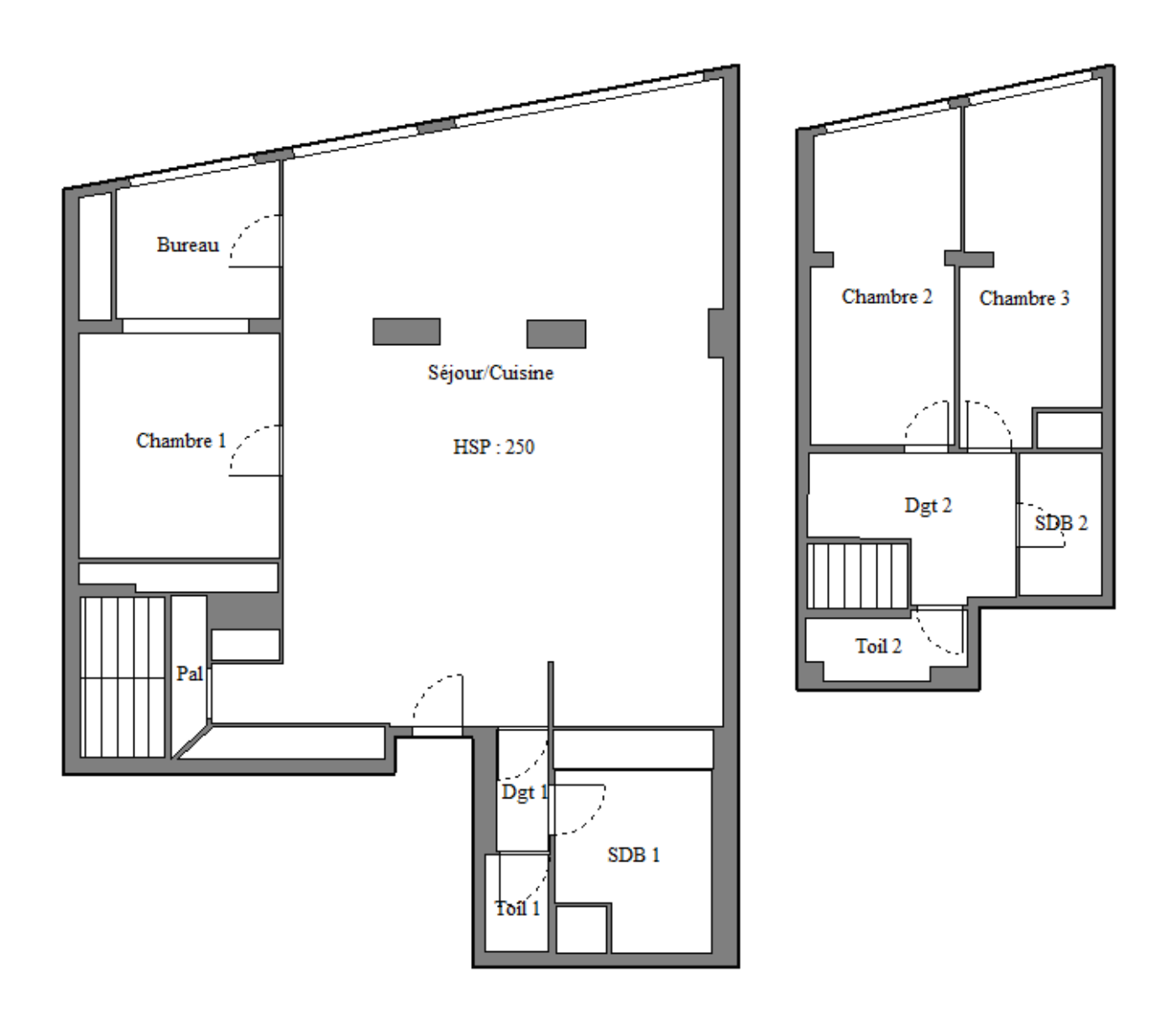
Exclusivité135.04 m²3 chambresHonoraires charge vendeurDPE: D (207 kWh/m².an) / GES: D (38kg CO2/m².an)Charges annuelles 6 601 €Copropriété - 26 lotsPas de procédure en coursplan
Jourdain, à deux pas du village et de ses commerces, du parc de Belleville, des transports et des écoles. Immeuble récent des années 70, duplex de 138 m² bien distribué doté de beaux volumes. Au 1er étage : vaste double réception, cuisine ouverte aménagée et équipée, chambre parentale dotée de son dressing et de son bureau, salle de bains, buanderie et toilettes séparées. Au rez-de-chaussée : deux chambres bénéficiant de rangements, salle de bains, toilettes. Deux caves. Emplacement de parking à proximité immédiate de l'appartement en supplément pour 25 000 €. Exclusivité Breteuil.
Les informations sur les risques auxquels ce bien est exposé sont disponibles sur le site Géorisques : www.georisques.gouv.fr