Rue des Renaudes
4 950 € / mois
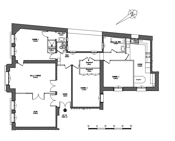
119 m²3 chambresProvisions pour charges avec régularisation annuelle: 350 €Dépôt de garantie : 8 737,1 €plan
Immeuble haussmannien en pierre de taille, sécurisé avec digicode et concierge, appartement meublé de 119 m² au 4ème étage desservi par ascenseur. Double séjour lumineux, cuisine équipée, chambre principale avec rangements et salle de douche, deux chambres avec placards, salle de bains, toilettes séparées. Nombreux rangements.
Cave au sous-sol.
Résidence avec services inclus : internet (box), ménage (1 h/semaine), alarme, salle de sport partagée.
Bail Loi ALUR ou Code civil.
Disponible début 04/2026.