Boucicaut
1 490 000 €12 837 € / m2
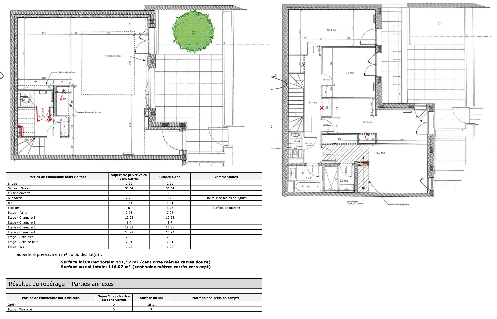
116.07 m²4 chambresDPE: Diagnostics en coursCharges annuelles 3 532 €Copropriété - 30 lotsPas de procédure en coursplan
Immeuble de 2017 de standing aux parties communes soignées, bénéficiant d'une bonne sectorisation (Claude Debussy). Elégant duplex en excellent état de 116,07m² au sol (111.12m² Carrez), au calme sur cour, jouissant de plusieurs espaces extérieurs.
Au rez-de-chaussée : entrée, grande pièce de vie ouvrant sur un jardin privatif de 28m², belle cuisine dînatoire ouverte entièrement équipée, espace buanderie, toilettes séparées.
Au premier étage : trois chambres dont deux ouvertes sur un large balcon de 7m², une suite parentale avec coin bureau et salle d'eau, salle de bains, toilettes séparées. Système domotique disponible dans l'appartement.
3 locaux à vélos et poussettes.
Possibilité d'acquérir en supplément un emplacement de parking dans l'immeuble doté d'une borne de recharge électrique (30 000 euros).
Les informations sur les risques auxquels ce bien est exposé sont disponibles sur le site Géorisques : www.georisques.gouv.fr