Campagne à Paris
945 000 €9 450 € / m2
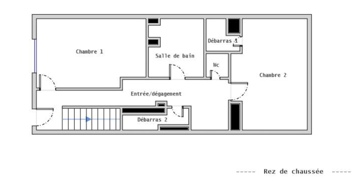
100 m²3 chambresHonoraires charge vendeurPrix hors honoraires: 917 476 €DPE: B (77 kWh/m².an) / GES: A (1kg CO2/m².an)Pas de procédure en coursplan
À proximité de la place Gambetta, des commerces et transports, « Campagne à Paris », maison familiale en pleine propriété d'environ 100 m², calme, lumineuse, bénéficiant d'agréables espaces extérieurs et d'une rénovation de qualité. Rez-de-chaussée surélevé : entrée, 2 chambres, salle de bains, toilettes séparées, buanderie, rangements. 1er étage : séjour, cuisine ouverte, terrasse. 2ème étage : chambre parentale, salle d'eau, toilettes, terrasse, nombreux rangements.
Les informations sur les risques auxquels ce bien est exposé sont disponibles sur le site Géorisques : www.georisques.gouv.fr