Suresnes
490 000 €7 538 € / m2
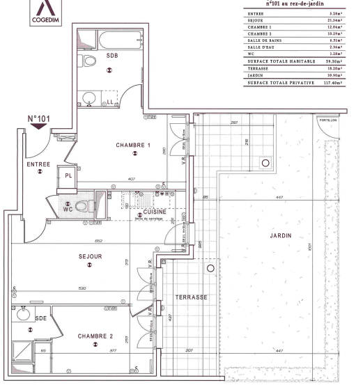
Exclusivité65 m²2 chambresHonoraires TTC charge acquéreur 23 333 € / 5%Prix hors honoraires: 466 667 €DPE: B (74 kWh/m².an) / GES: C (12kg CO2/m².an)Charges annuelles 3 300 €Copropriété - 70 lotsPas de procédure en coursplan
Suresnes - Résidence Sisley
Idéalement situé à proximité des commerces et des transports, au sein d'une copropriété de grand standing très bien entretenue par les services d'une gardienne, appartement de 59 m² en rez-de-jardin de 60m2 comprenant une entrée dotée d'un dressing, un séjour/cuisine ouvrant sur une terrasse de plain-pied et dans la continuité un jardin, deux chambres, salle de bains avec toilettes, salle de douches, toilettes séparées. Cave. Parking en sus.
Les informations sur les risques auxquels ce bien est exposé sont disponibles sur le site Géorisques : www.georisques.gouv.fr