Deauville
490 000 €7 538 € / m2
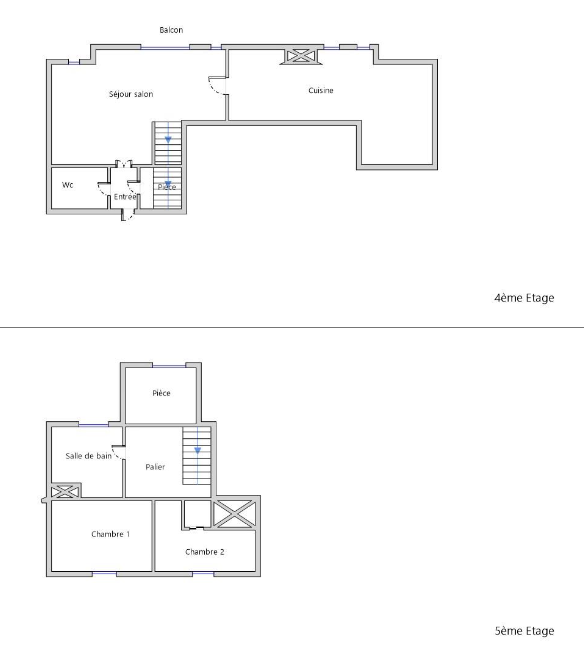
65 m²2 chambresPrix hors honoraires: 471 154 €DPE: E (314 kWh/m².an) / GES: B (11kg CO2/m².an)Charges annuelles 2 000 €Copropriété - 100 lotsPas de procédure en coursplan
Exclusivité Breteuil - À deux pas de la gare et de la place Morny, au dernier étage d’une résidence de standing sécurisée avec gardien et ascenseur, appartement en duplex de 80m² au sol. Au premier niveau : entrée, séjour avec balcon offrant une vue sur le port, cuisine dinatoire, toilettes pour invités, vestiaire. Au second niveau : palier desservant une mezzanine, deux chambres avec placards, salle d’eau avec toilettes. Possibilité d'acquérir une place de parking en sous-sol en complément du prix de vente.
Les informations sur les risques auxquels ce bien est exposé sont disponibles sur le site Géorisques : www.georisques.gouv.fr