Ségur - Breteuil
520 000 €15 285 € / m2
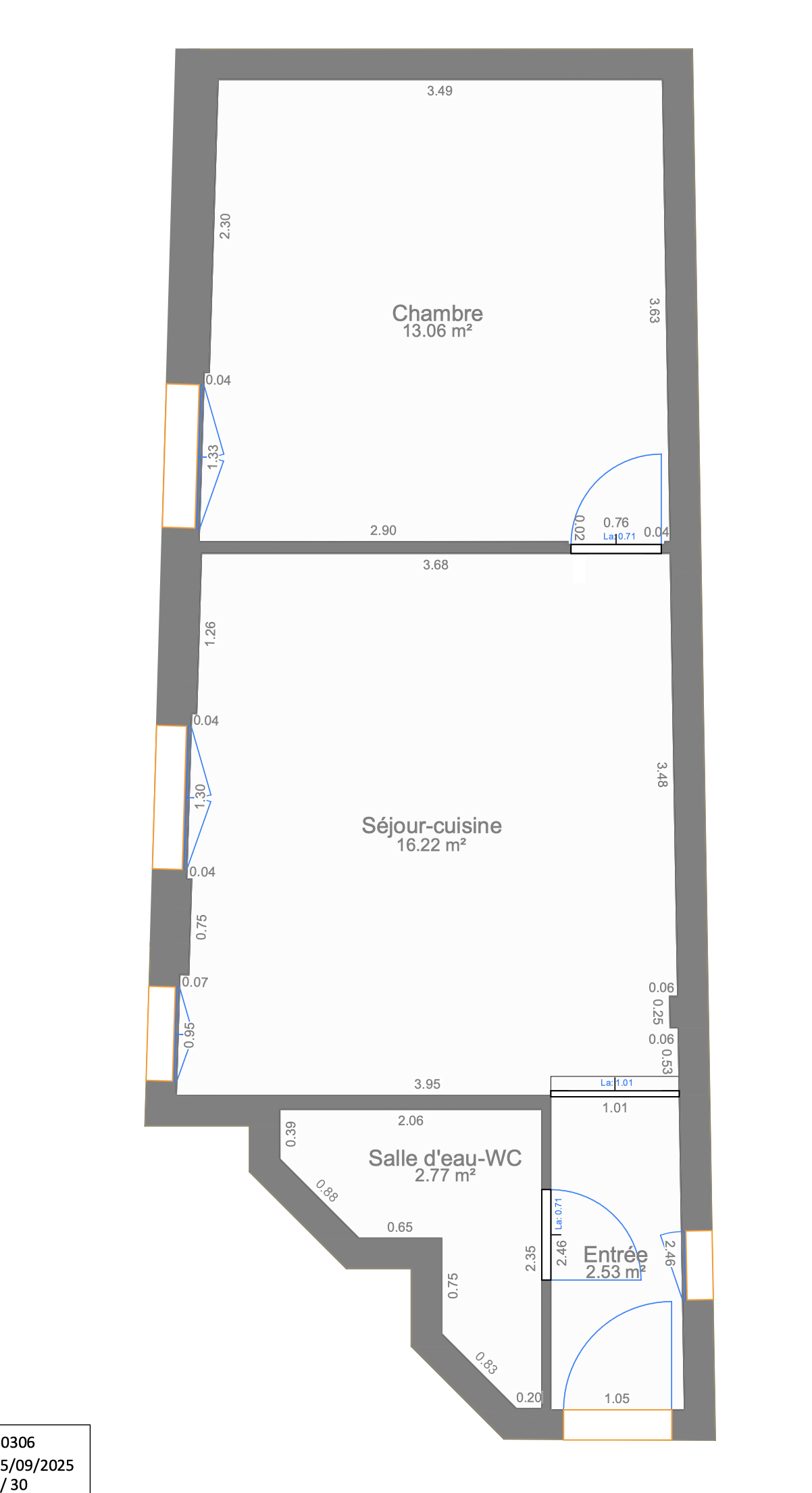
Exclusivité34.02 m²1 chambreHonoraires charge vendeurDPE: G (455 kWh/m².an) / GES: C (22kg CO2/m².an)Logement à consommation énergétique excessiveFacture énergétique estimée entre 1 440 et 1 988 €/anCopropriété - 22 lotsPas de procédure en coursplan
Entre le métro Ségur et la place de Breteuil, très bel immeuble en pierre de taille très bien entretenu. Situé au 2ème étage desservi par escalier de l'immeuble cour, agréable appartement de deux pièces d'environ 35m² vendu meublé, récemment rénové, profitant d'une belle hauteur sous plafond ainsi que d'un plan sans perte de place. Entrée, séjour avec cuisine ouverte, chambre avec grand dressing, salle d'eau avec toilettes. Cave
Les informations sur les risques auxquels ce bien est exposé sont disponibles sur le site Géorisques : www.georisques.gouv.fr