Neuilly - Château
470 000 €10 269 € / m2
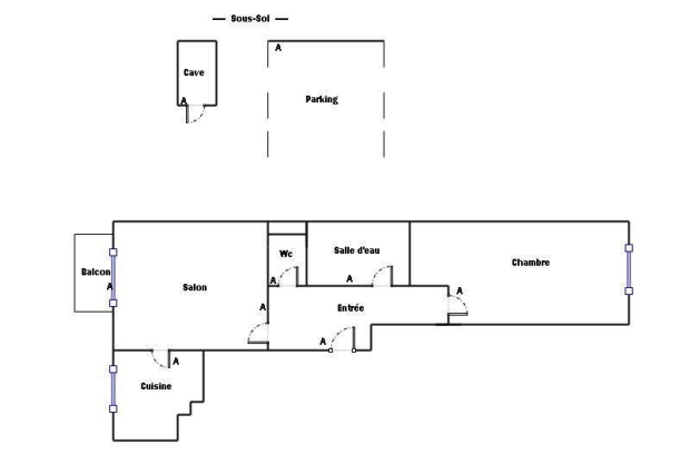
45.77 m²1 chambreHonoraires charge vendeurDPE: F (401 kWh/m².an) / GES: F (86kg CO2/m².an)Logement à consommation énergétique excessiveCharges annuelles 3 638 €Pas de procédure en coursplan
Idéalement situé dans une rue résidentielle à deux pas des commerces et des transports, dans un immeuble semi-récent, appartement traversant à rénover de 46 m² au 3ème étage. Entrée, séjour avec balcon profitant d'une vue dégagée sur jardin, cuisine ouverte, chambre sur rue, salle de douches et toilettes séparées, nombreux rangements. Cave. Possibilité de parking en sus.
Les informations sur les risques auxquels ce bien est exposé sont disponibles sur le site Géorisques : www.georisques.gouv.fr