Mairie de Montreuil
350 000 €6 481 € / m2
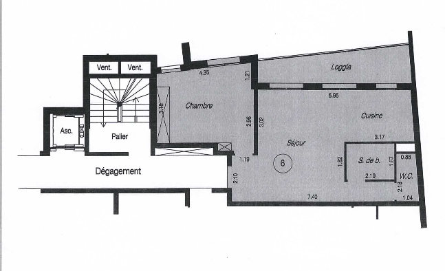
Exclusivité54 m²1 chambreDPE: C (129 kWh/m².an) / GES: C (26kg CO2/m².an)Charges annuelles 3 048 €Copropriété - 26 lotsPas de procédure en coursplan
A 8 minutes de la Mairie de Montreuil, au sein d'un immeuble moderne de 2012 norme BBC, bien entretenu, appartement de deux pièces principales en parfait état : entrée, vaste séjour donnant sur un balcon de 9,5m2, cuisine ouverte, belle chambre, rangements, salle d’eau, toilettes séparées. Calme, lumineux, bénéficiant d’une vue dégagée. Emplacement de parking. Accès PMR.
Les informations sur les risques auxquels ce bien est exposé sont disponibles sur le site Géorisques : www.georisques.gouv.fr